AQUA
Presentem Aqua, una promoció residencial dissenyada per adaptar-se a tots els estils de vida.
Composta per dos blocs d’habitatges, ofereix pisos de 2, 3 i 4 habitacions, amb diferents distribucions pensades per satisfer les necessitats de cada comprador.
Cada pis ha estat dissenyat per oferir espais amplis, llum natural i acabats de qualitat, seguint l’excel·lència que caracteritza les promocions de Grup Sorigué.
Aqua no és només una llar, és un espai per gaudir. L’edifici compta amb una zona comunitària exclusiva amb piscina, ideal per relaxar-se i compartir moments únics.
Situat al Parc de l’Aigua de Lleida, Aqua combina tranquil·litat i accessibilitat, amb tots els serveis i comoditats al teu abast.
Aqua: habitatges amb estil, qualitat i benestar al Parc de l’Aigua.
Tipologies i plànols
– 2 Habitacions –
2 HABITACIONS
- Habitacions: 2
- Banys: 2
- Sup. interior: 67,89 m²
- Sup. construïda: 85,91 m²
- Sup. terrassa: 10,49 m²
– 3 Habitacions –
3 HAB. PLANTA BAIXA
- Habitacions: 3
- Banys: 2
- Sup. interior: 101,06 m²
- Sup. construïda: 118,99 m²
- Sup. terrassa 1: 22,24 m²
- Sup. terrassa 2: 9,06 m²
- Sup. jardí: 16,57 m²
3 HAB. TIPUS ESC.3A
- Habitacions: 3
- Banys: 2
- Sup. interior: 86,12 m²
- Sup. construïda: 103,19 m²
- Sup. terrassa: 11,57 m²
des de 295.000 euros
3 HAB. PASSANT ESC.1A
- Habitacions: 3
- Banys: 2
- Sup. interior: 90,05 m²
- Sup. construïda: 109,93 m²
- Sup. terrassa 1: 10,59 m²
- Sup. terrassa 2: 6,72 m²
– 4 Habitacions –
4 HAB. PLANTA BAIXA ESC.3A
- Habitacions: 4
- Banys: 2
- Sup. interior: 110,00 m²
- Sup. construïda: 128,90 m²
- Sup. terrassa : 96,63 m²
des de 335.000 euros
4 HAB. TIPUS ESC B
- Habitacions: 4
- Banys: 2
- Sup. interior: 94,63 m²
- Sup. construïda: 113,84 m²
- Sup. terrassa 1: 18,32 m²
- Sup. terrassa 2: 9,15 m²
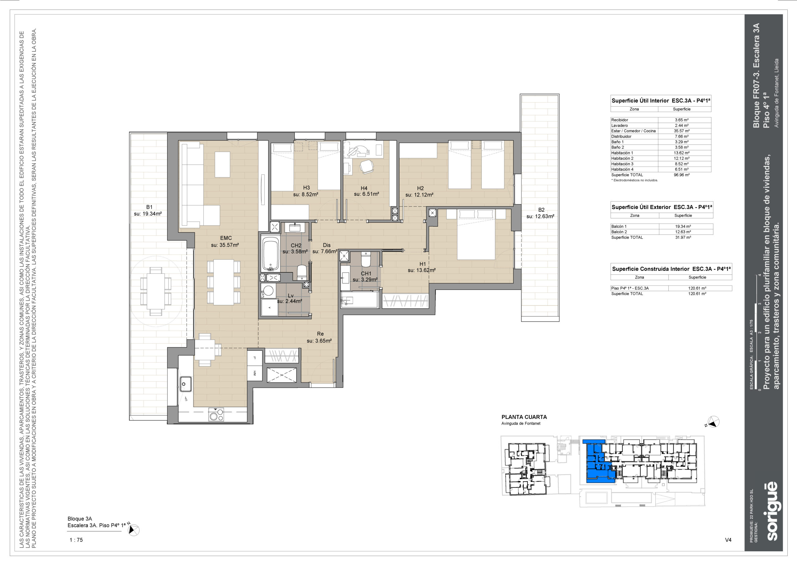
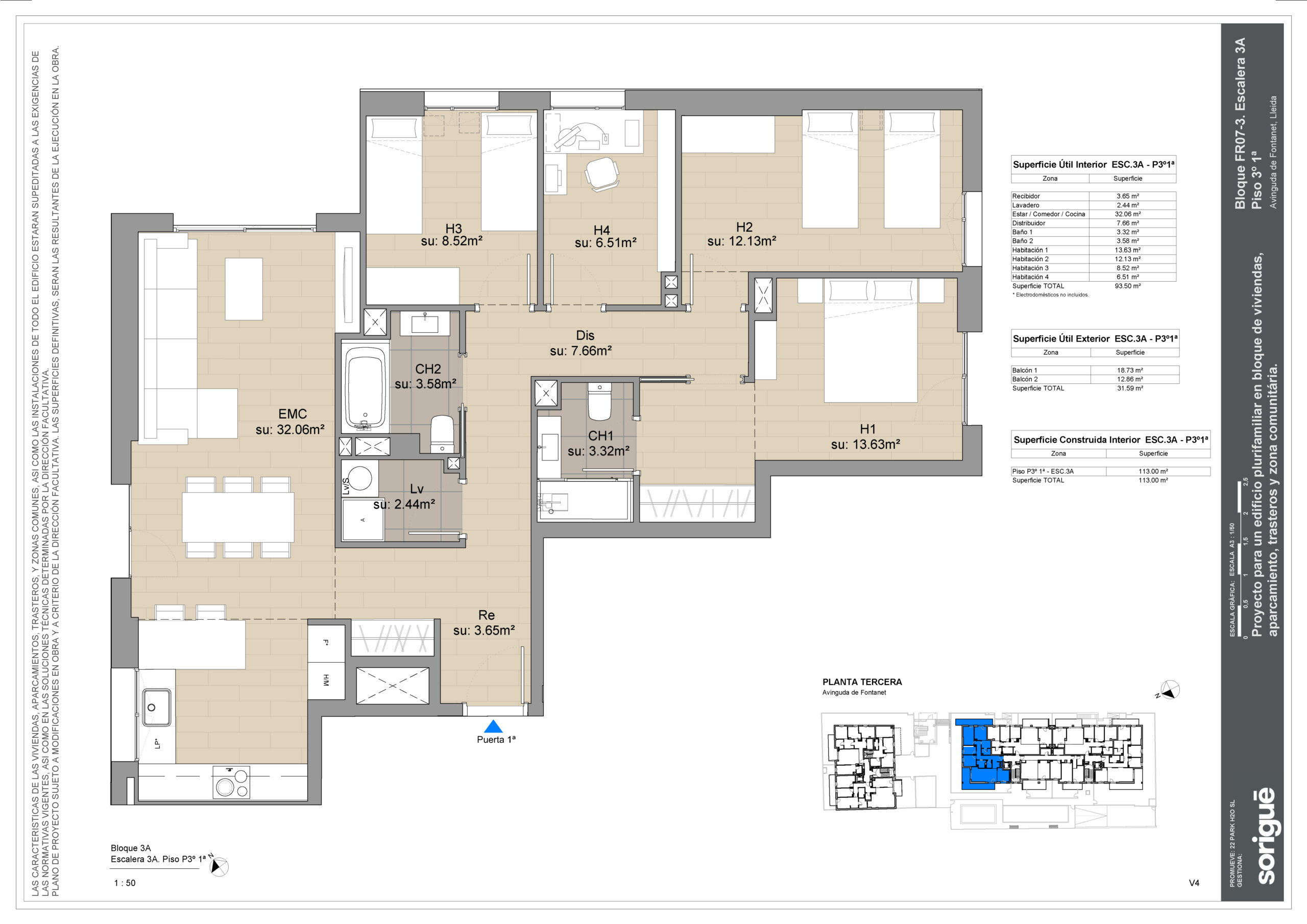
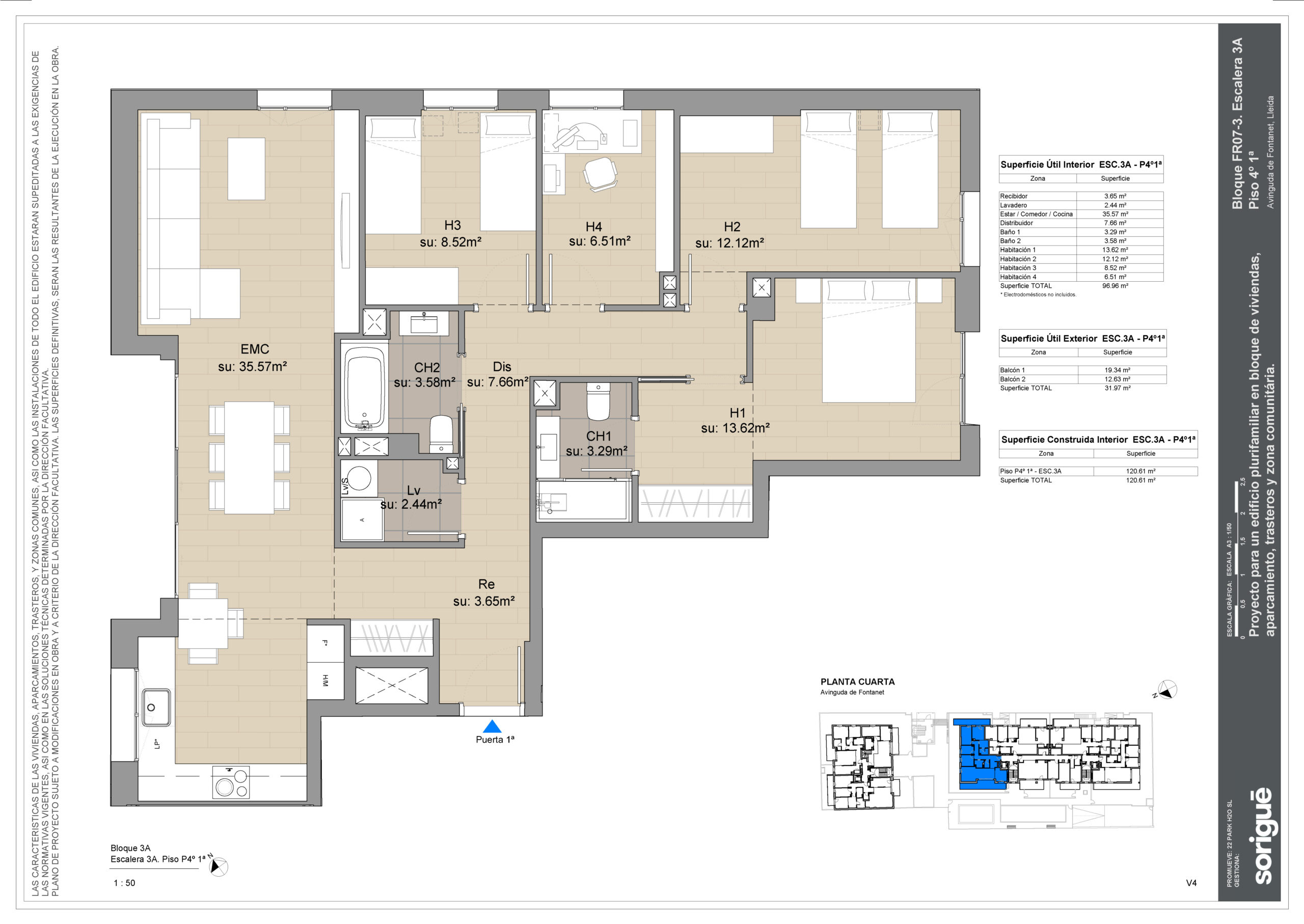
4 HAB. TIPUS ESC A
- Habitacions: 4
- Banys: 2
- Sup. interior: 93,50 m²
- Sup. construïda: 113,00 m²
- Sup. terrassa 1: 18,32 m²
- Sup. terrassa 2: 12,86 m²
des de 315.000 euros
4 HAB. DÚPLEX
- Habitacions: 4
- Banys: 2
- Sup. interior: 102,69 m²
- Sup. construïda: 124,57 m²
- Sup. terrassa : 10,49 m²
Vídeo Aqua
Ubicació
Av. Fontanet 34, Lleida
Av. Fontanet, Lleida
Aqua.Memòria de qualitats
Descarrega aquí una recopilació detallada dels acabats de fusteria, marqueteria, paviments, fontaneria.. sens dubte unes qualitats i acabats que no et deixaran indiferent.
















